德赢vwin8868官网地产-地产开发-住宅项目-云著系
RESIDENTIAL PROJECT
住宅项目-云著系
苏州-德赢vwin8868官网-苏州德赢vwin8868官网·滨河云璟
苏州 苏州德赢vwin8868官网·滨河云璟
  • 楼盘地址:
    张家港蒋乘路与新城路交叉口
  • 物业类型:
    洋房、低密
  • 所属商圈:
    城东商圈
  • 项目特色:
    4层真叠墅;低密墅境洋房
  • 销售电话:
    0512-65196666
苏州德赢vwin8868官网·滨河云璟
项目概述

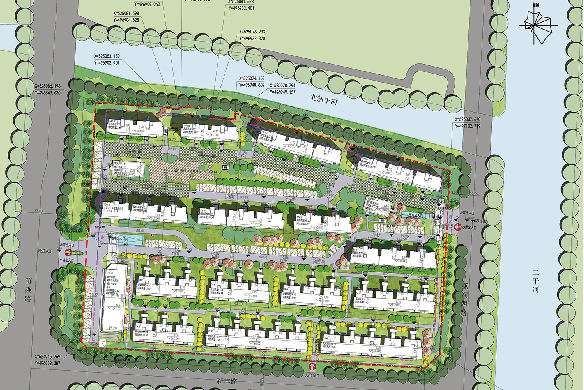
德赢vwin8868官网滨河云璟位于张家港城东核芯,蒋乘路与新丰路交叉口,对望黄泗浦生态公园。项目占地面积约4.19万方,总建筑面积约6.1万方,容积率约为1.5,是区域难得一见的低密墅境住区;项目规划15幢品质住宅,共计532套,4层叠加别墅、9层阔景洋房和11层情境洋房,户型面积为:建筑面积约99-110㎡墅境洋房,建筑面积约180-268㎡庭院叠墅,以德赢vwin8868官网中高端 “云著系”精工品质,为港城高净值人士打造匹配其身份的理想人居。


  • 规划图
    规划图(1)
  • 效果图
    项目效果图(1)
  • 实景图
    项目实景图(1)
户型介绍
  • 99㎡
    99㎡
  • 110㎡
    110㎡
  • 180㎡-01
    180㎡-01
  • 180㎡-02
    180㎡-02
  • 180㎡-03
    180㎡-03
  • 268㎡-01
    268㎡-01
  • 268㎡-02
    268㎡-02
  • 268㎡-03
    268㎡-03
  • 268㎡-04
    268㎡-04
楼盘位置与配套

交通:张杨路、东二环路、苏虞张公路、通锡高速、沿江城际铁路(规划中)

教育:乘航小学,张家港市第七中学

商业:万达广场、曼巴特购物广场、欧尚超市

医院:乘航医院、江苏大学附属澳洋医院

自然:黄泗浦生态公园、梁丰生态园