德赢vwin8868官网地产-地产开发-住宅项目-云著系
RESIDENTIAL PROJECT
住宅项目-云著系
绍兴-德赢vwin8868官网-绍兴德赢vwin8868官网·半岛云著
绍兴 绍兴德赢vwin8868官网·半岛云著
  • 楼盘地址:
    柯桥区香林大道与彪佳路交汇处
  • 物业类型:
    小高层、洋房、低密
  • 所属商圈:
    坂湖商圈
  • 项目特色:
    低密墅居大盘 品牌房企 全龄社区配套
  • 销售电话:
    0575-88203999
绍兴德赢vwin8868官网·半岛云著
项目概述

德赢vwin8868官网半岛云著,柯桥现象级红盘,以40万方低密墅境大盘,致献柯桥城市流金藏品。项目东至药王庙直江,南至梅墅横江,自成半岛格局,规划打造排屋+洋房+叠墅+小高层纯低密住区,构建都会中的静谧栖居环境。以现代简约风格刻画建筑,立面整体呈高级灰,搭配米白色真石漆与巨幕玻璃栏板,辉映粼粼水面,契合国际前沿审美。

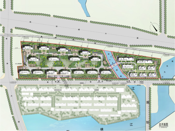
  • 半岛云著二期规划图
    规划图(1)
  • 半岛云著二期效果图
    项目效果图(1)
户型介绍
  • 半岛云著二期户型图
    半岛云著二期户型图
楼盘位置与配套

一、自然景观资源方面:拥揽柯桥古镇景区,投资约20亿元,是融餐饮住宿、观光购物、文化娱乐、创意产业等业态为一体的城市综合平台,正在领航一场城市界面升级之潮;

二、交通出行方面:近距越州大道,连接育才路、笛扬路、金柯桥大道等城市主干道,快速衔接杭州中环线、杭绍台高速、杭金衢高速;

三、商业购物方面:区域内设置杭绍城际铁路(接杭州地铁五号线)笛扬路站, 商业上,奥特莱斯、金地自在天地二期商圈、蓝天商圈、天虹商场、银泰百货、万达广场、柯桥购物中心、锦麟天地购物中心、联华超市等,汇聚柯桥高端商综。 

四、教育资源方面:柯桥中心幼儿园、柯桥区实验小学、柯桥小学、浙江省柯桥中学、绍兴市柯桥区实验中学、浙江工业大学之江学院等全龄优教荟萃。(非学区承诺,学区划分以每年教育局公布为准) 

五、医疗配套方面:近邻三甲医院中国医科大学绍兴医院和柯桥口腔医院,柯桥妇保医院,柯桥中医医院等优质医疗资源。